Villa Jäger
Pienzenauerstraße 72
Als sich Architekt Carl Jäger trotz Inflation und wirtschaftlicher Krise der 1920er-Jahre als selbstständiger Architekt in München etablieren konnte, erwarb er einen Bauplatz an der Pienzenauerstraße 72 im noblen und schon damals begehrten Herzogpark und errichtete sich dort ein Wohnhaus für seine Frau Helene und die beiden Töchter. "Wenn Geld kam, rannten die Büro-Beamten und kauften Ziegelsteine, Balken, Dachplatten etc. mitten in der Inflation und 1923 konnten wir einziehen.", so Jäger selbst in seinen Erinnerungen. Das ursprünglich als Hausmeister- und Dienstbotenhaus gedachte Gartenhaus (Pienzenauerstraße 74) – rückwärts in den Garten gesetzt – wurde zu einem Wohnhaus ausgebaut und vermietet.
Als Carl Jäger in den Ruhestand ging, erwarb er preiswert einen Bauplatz an der damaligen Gumppenbergstraße 4 und baute dort 1934–35 ein etwas bescheideneres Haus. Das Haus an der Pienzenauerstraße 72 wurde verkauft, mit Ausnahme des Gartenhauses, das in der Folgezeit an Prof. Claudius Aschenbrenner vermietet wurde.1944 zum Teil zerbombt stellte es Jäger 1950 wieder her.
![]()
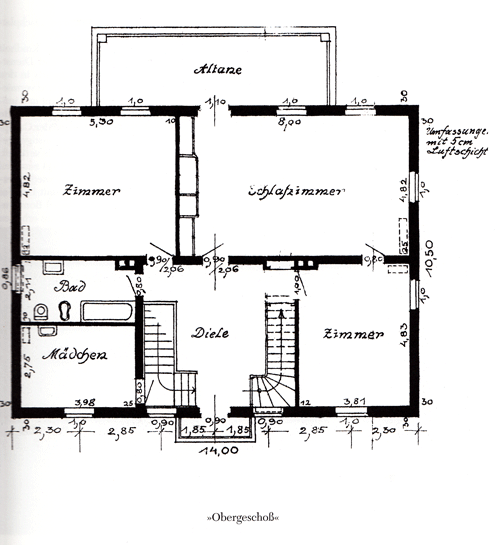
Fotos von oben nach unten:
Carl Jäger mit Frau Helene vor der Villa, Pienzenauerstraße 72, Buchscan aus: Karl, Willibald (Hg.): Der Herzogpark. Wandlungen eines Zaubergartens, München 2000, S. 106.
Grundrisse Erdgeschoß und Obergeschoß Pienzenauerstraße 72, 1926 nachträglich gezeichnet von Carl Jäger, Buchscan aus s.o., S. 104f.
Tochter Renate Jäger im Treppenhaus der Villa Pienzenauerstraße 72. Die Interieurs wurden von Jägers Freund Paul Ludwig Troost gefertigt.
Die Villa Jäger, Pienzenauerstraße 72 nach dem Umbau durch den Architekten Hein Goldstein in den 1990er-Jahren. "Material- und Farbwahl der Neubauteile stehen im bewussten Kontrast zum herrschaftlichen Auftritt des Altbaus [...]. Alt und Neu stehen gleichberechtigt nebeneinander." (Goldstein) Das ehemals harmonisch auftretende Ensemble aus Portikus, Balkon und gut proportioniertem Walmdach erscheint dem Betrachter jedoch nach den Erneuerungs- und vor allem Vergörßerungsmaßnahmen eher gestört. Buchscan aus s.o., S. 174.